賃貸物件
Rental

物件名

ハイツフローラ
物件番号A-2

所在地・交通

米沢市春日2丁目5-74
春日2丁目バス停まで徒歩3分

物件情報

賃料:38,000円

敷金:1ヶ月

礼金:‐

共益費等:2,000円

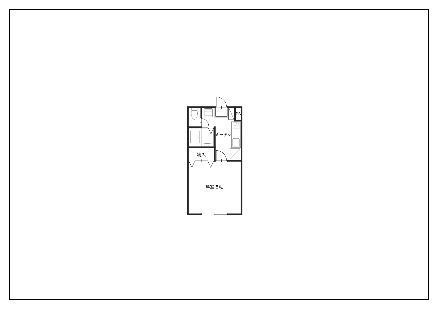
間取り:1K

築年:1995年03月

イオン米沢店まで徒歩3分、郵便局も徒歩圏内。日々の買い物や用事を、気負わずこなせる立地です。 米沢北ICへのアクセスも良く、山形・福島方面への移動にも便利です。 ガスは集中ガス方式を採用しており、個別プロパンに比べて光熱費を抑えられるのも嬉しいポイント。 インターネットはWi-Fi無料で利用可能です。

間取り図

周辺マップ

所在地・交通

所在地米沢市春日2丁目5-74

交通春日2丁目バス停まで徒歩3分

学区北部小 / 第四中(北成中)

物件詳細

専有面積25.6m²

間取り1K

建物構造木造

築年1995年03月

階数2階建 / 1階

駐車場有 2,000円

保険

保証会社

契約形態普通借家契約

取引形態媒介

入居日相談

築年1995年03月

階数2階建 / 1階

駐車場有 2,000円

保険

保証会社

契約形態普通借家契約

取引形態媒介

入居日相談

設備公営水道、公共下水道、集中ガス、バストイレ別、温水洗浄便座、エアコン、シューズボックス、ケーブルテレビ、Wi-Fi、消雪駐車場、敷地内ゴミ置き場等

備考・上下水道料 定額4,000円 ・町内費 200円

注意事項・図面及び写真が現況と相違する場合は、現況優先とさせていただきます。 ・当サイトでは掲載情報に厳重なチェックを心がけていますが、万が一記載ミスが生じた場合は予めご容赦下さい。

注意事項・図面及び写真が現況と相違する場合は、現況優先とさせていただきます。 ・当サイトでは掲載情報に厳重なチェックを心がけていますが、万が一記載ミスが生じた場合は予めご容赦下さい。

情報更新日2026年02月10日

次回更新日2026年02月24日

内見お申し込み・
お問い合わせはこちら
Application/Inquiry

Contact Form