売買物件
Buying and selling

賃貸マンション
ミッドタウン米沢

物件番号M-3

所在地・交通

米沢市駅前3丁目6-40
JR米沢駅まで徒歩8分

物件情報

賃料:115,000円

敷金:1ヶ月

礼金:1ヶ月

管理費:7,000円

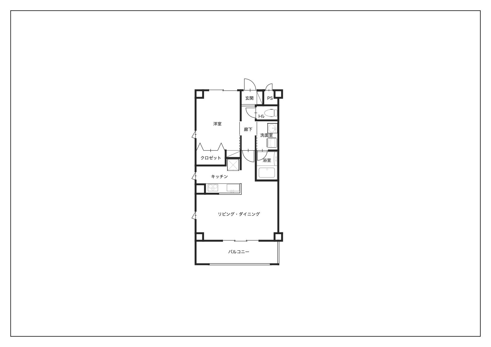
間取り:1LDK

築年:2026/01

所在地・交通

所在地米沢市駅前3丁目6-40

交通JR米沢駅まで徒歩8分

学区東部小 / 第一中(東成中)

物件詳細

専有面積52㎡

間取り1LDK

建物構造鉄骨造

築年2026/01

階数6階建/6階

駐車場有 / 1台込 2台目3,000円

保険

保証会社

契約形態普通借家契約

取引形態媒介

入居日相談

築年2026/01

階数6階建/6階

駐車場有 / 1台込 2台目3,000円

保険

保証会社

契約形態普通借家契約

取引形態媒介

入居日相談

設備フローリング、クロゼット、システムキッチン、IHクッキングヒーター、シャワー付洗面化粧台 追炊機能、温水洗浄便座、室内洗濯機置き場、サンルーム兼バルコニー、インターネット対応、エアコン、TV付インターホン、照明、オートロック、エレベーター、宅配ボックス 防犯カメラ、共用応接ルーム、消雪駐車場、駐輪場、敷地内ゴミ置き場等

備考

注意事項・図面及び写真が現況と相違する場合は、現況優先とさせていただきます。 ・当サイトでは掲載情報に厳重なチェックを心がけていますが、万が一記載ミスが生じた場合は予めご容赦下さい。

注意事項・図面及び写真が現況と相違する場合は、現況優先とさせていただきます。 ・当サイトでは掲載情報に厳重なチェックを心がけていますが、万が一記載ミスが生じた場合は予めご容赦下さい。

情報更新日07/01/2026

次回更新日21/01/2026

内見お申し込み・
お問い合わせはこちら
Application/Inquiry

Contact Form