売買物件
Buying and selling

物件名

米沢市太田町 売戸建(リフォーム済)
物件番号T-4

所在地・交通

米沢市太田町5丁目2-34
南米沢駅まで1.5km

物件情報

価格:1.098万円

建物面積:118.96㎡ / 35.98坪

間取り:4LDK

築年:1973年10月

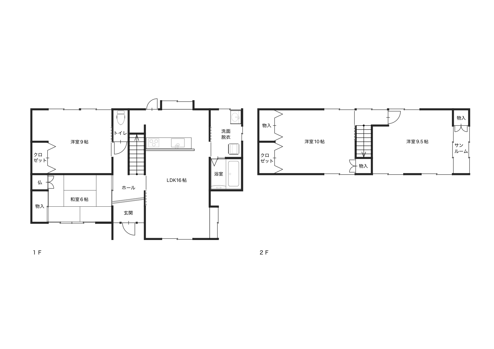
3~4人家族にちょうどよい、36坪・4LDKの住宅です。 車庫兼物置を備え、日々の暮らしに必要な機能がきちんと揃っています。 1階にはLDKと和室に加え、9帖の洋室も配置。お一人かお二人住まいの場合は、2階に上がらず、1階だけで生活が完結する平屋のような使い方も可能です。将来の暮らし方を見据えた、柔軟な間取りが魅力です。 屋根・外壁の塗装、クロスの張替えを行い、水回り設備もお風呂を除き入替されています。これから長く住み継いでいくためのリフォームが施されており、大きな手直しをせず、すぐに新しい暮らしを始めていただけます。

間取り図

周辺マップ

所在地・交通

所在地米沢市太田町5丁目2-34

交通南米沢駅まで1.5km

学区南部小 / 第二中(南成中)

物件詳細

土地面積229.95㎡ / 69.55坪

建物面積118.96㎡ / 35.98坪

間取り4LDK

建物構造木造2階建

築年1973年10月

駐車場4台(内車庫1第)

都市計画非線引区域

用途地域第一種低層住居専用地域

建ぺい率50%

容積率60%

接道東側 公道5.5m

現況空家

土地権利所有権

取引形態媒介

引渡時期相談

駐車場4台(内車庫1第)

都市計画非線引区域

用途地域第一種低層住居専用地域

建ぺい率50%

容積率60%

接道東側 公道5.5m

現況空家

土地権利所有権

取引形態媒介

引渡時期相談

設備公営水道、公共下水道、システムキッチン、ユニットバス、シャワー付き洗面化粧台、温水洗浄便座、追炊き給湯、テレビドアホン、ディンプルキー、ダブルロックドア、照明器具、火災警報器(報知機)、複層ガラス、車庫兼物置等

備考2025年5月リフォーム完了 クロス貼替、洗面所・トイレCF貼替、システムキッチン・洗面化粧台・トイレ陶器新品交換・玄関ドア(寒冷地用)新設、屋根・外壁塗装

注意事項・図面及び写真が現況と相違する場合は、現況優先とさせていただきます。 ・当サイトでは掲載情報に厳重なチェックを心がけていますが、万が一記載ミスが生じた場合は予めご容赦下さい。

注意事項・図面及び写真が現況と相違する場合は、現況優先とさせていただきます。 ・当サイトでは掲載情報に厳重なチェックを心がけていますが、万が一記載ミスが生じた場合は予めご容赦下さい。

情報更新日2026年02月10日

次回更新日2026年02月24日

内見お申し込み・
お問い合わせはこちら
Application/Inquiry

Contact Form