売買物件
Buying and selling

物件名

米沢市東大通 売戸建(リフォーム済)
物件番号K-7

所在地・交通

米沢市東大通1丁目119-8
JR米沢駅まで2.8km

物件情報

価格:999万円

建物面積:106.76㎡ / 32.29坪

間取り:4LDK

築年:1975年11月

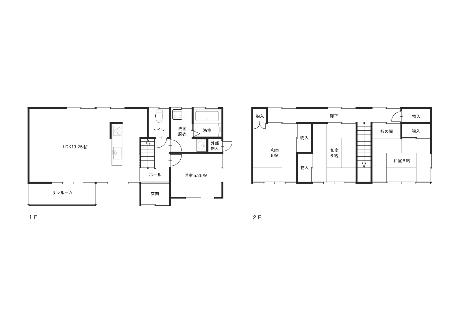
東大通の南部、旧米沢第五中学校近くの住宅街に建つ住宅です。大通りから一本入った場所にあり、落ち着いた環境となっています。 建物は32坪・4LDK。コンパクトながら無駄のない、使い勝手の良い間取りです。LDKはゆとりのある広さを確保し、キッチンは左右から入れる動線で、家事のしやすさにも配慮されています。南側に設けられたサンルームにはたっぷりと陽が入り、物干しスペースとしてはもちろん、暮らしの中で多目的に使えそうです。1階に洋室、2階には和室が3室あり部屋数も十分。2階廊下の物入は、必要に応じてトイレへ変更することも可能です(工事が必要となります)。 屋根塗装、クロス張替え、水回り設備の入替等、必要なリフォーム工事が施されているのも魅力で、すぐにお住まいいただけます。 敷地は71坪。2台分の駐車スペースと、ちょっとした庭を設けられる余地もあり、建物と敷地のバランスがとれた住まいです。 ※こちらの物件がある住宅街には、他に2件の戸建物件があります。是非ご一緒にご見学ください。

間取り図

周辺マップ

所在地・交通

所在地米沢市東大通1丁目119-8

交通JR米沢駅まで2.8km

学区東部小 / 第一中

物件詳細

土地面積236.85㎡ / 71.64坪

建物面積106.76㎡ / 32.29坪

間取り4LDK

建物構造木造2階建

築年1975年11月

駐車場2台

都市計画非線引区域

用途地域第二種中高層住居専用地域

建ぺい率60%

容積率200%

接道東側 公道6m

現況空家

土地権利所有権

取引形態媒介

引渡時期相談

駐車場2台

都市計画非線引区域

用途地域第二種中高層住居専用地域

建ぺい率60%

容積率200%

接道東側 公道6m

現況空家

土地権利所有権

取引形態媒介

引渡時期相談

設備公営水道、公共下水道、オール電化、システムキッチン、ユニットバス、洗浄便座、テレビドアホン、シューズボックス、LED照明、火災警報器、サンルーム、瑕疵保証付等

備考2025年1月 リフォーム完了 屋根塗装、駐車場拡張、キッチン・バス・トイレ・洗面化粧台交換、クロス張替

注意事項・図面及び写真が現況と相違する場合は、現況優先とさせていただきます。 ・当サイトでは掲載情報に厳重なチェックを心がけていますが、万が一記載ミスが生じた場合は予めご容赦下さい。

注意事項・図面及び写真が現況と相違する場合は、現況優先とさせていただきます。 ・当サイトでは掲載情報に厳重なチェックを心がけていますが、万が一記載ミスが生じた場合は予めご容赦下さい。

情報更新日2026年02月10日

次回更新日2026年02月24日

内見お申し込み・
お問い合わせはこちら
Application/Inquiry

Contact Form