売買物件
Buying and selling

物件名

米沢市東大通 売戸建
物件番号K-9

所在地・交通

米沢市東大通1丁目1-119-23
JR米沢駅まで2.8km

物件情報

価格:300万円

建物面積:118.01㎡ / 35.69坪

間取り:5DK

築年:1975年11月

築年数は重ねていますが、建物内はきれいに保たれており、これまで住まわれてきた方の丁寧な暮らしぶりが感じられる住まいです。 35坪と広すぎず、かといって窮屈さもない、日々の暮らしにちょうどよいボリューム。内装はレトロで趣があります。 現況でのお引き渡しとなるため、このまま住み始めることも可能ですし、暮らしに合わせてリフォームやリノベーションを加えていくこともできます。住みながら少しずつ手を入れていく、そんな住まい方も似合いそうです。 現在、敷地内の駐車スペースは1台分となっており、2台以上の駐車を希望される場合は、駐車場の拡幅工事が必要となります。 ※こちらの物件がある住宅街には、他に2件の戸建物件(リフォーム済)があります。是非ご一緒にご見学ください。

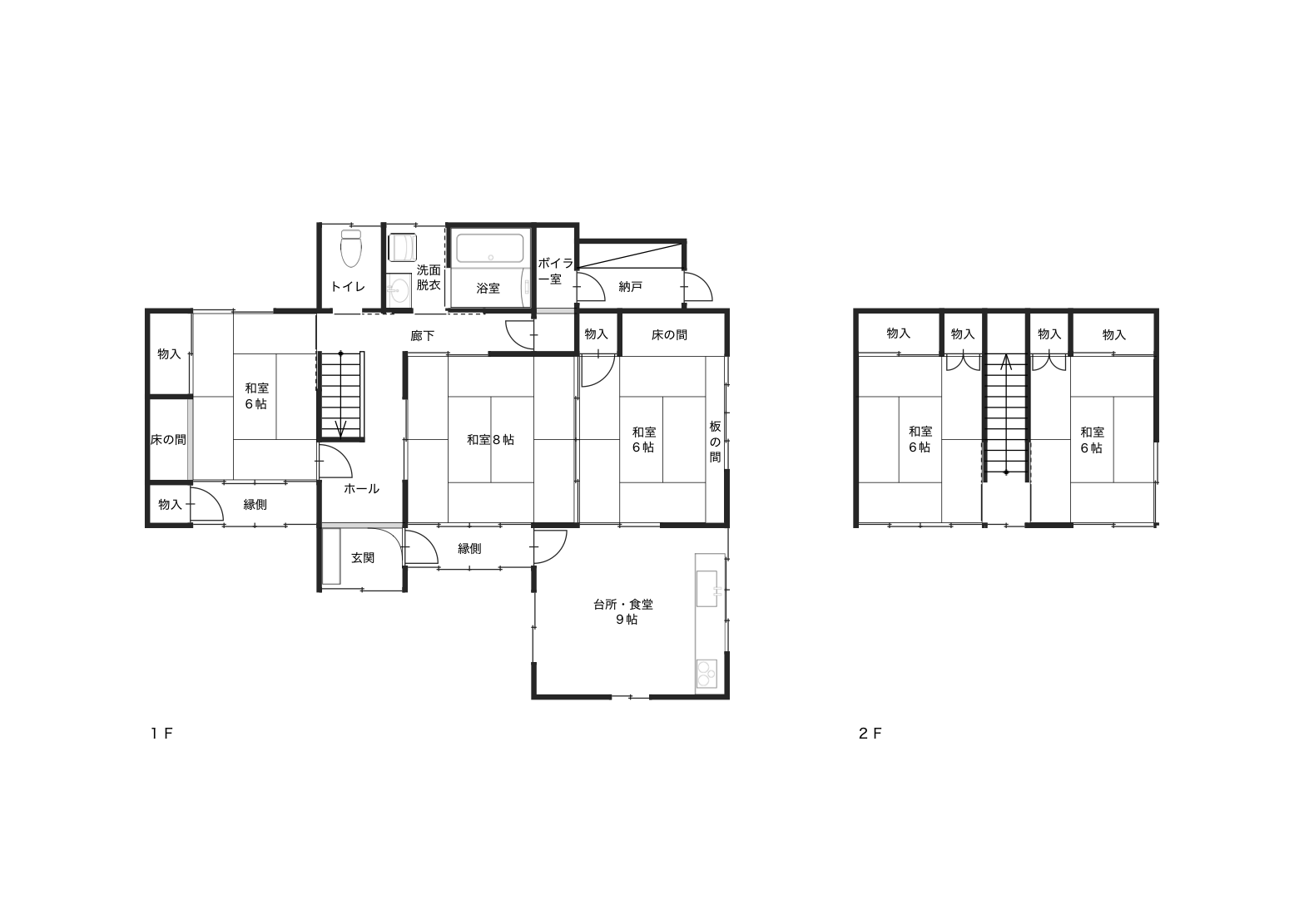
間取り図

周辺マップ

所在地・交通

所在地米沢市東大通1丁目1-119-23

交通JR米沢駅まで2.8km

学区東部小 / 第一中

物件詳細

土地面積257.07㎡ / 77.76坪

建物面積118.01㎡ / 35.69坪

間取り5DK

建物構造木造2階建

築年1975年11月

駐車場1台

都市計画非線引区域

用途地域第二種中高層住居専用地域

建ぺい率60%

容積率200%

接道西側 公道6m

現況空家

土地権利所有権

取引形態媒介

引渡時期相談

駐車場1台

都市計画非線引区域

用途地域第二種中高層住居専用地域

建ぺい率60%

容積率200%

接道西側 公道6m

現況空家

土地権利所有権

取引形態媒介

引渡時期相談

設備公営水道、公共下水道、ユニットバス、シャワー付洗面化粧台、水洗トイレ、シューズボックス、外物置等

備考・契約不適合責任免責 ・現況有姿引渡し(残置物は撤去) ・解体更地渡し売買も相談可

注意事項・図面及び写真が現況と相違する場合は、現況優先とさせていただきます。 ・当サイトでは掲載情報に厳重なチェックを心がけていますが、万が一記載ミスが生じた場合は予めご容赦下さい。

注意事項・図面及び写真が現況と相違する場合は、現況優先とさせていただきます。 ・当サイトでは掲載情報に厳重なチェックを心がけていますが、万が一記載ミスが生じた場合は予めご容赦下さい。

情報更新日2026年02月10日

次回更新日2026年02月24日

内見お申し込み・
お問い合わせはこちら
Application/Inquiry

Contact Form