売買物件
Buying and selling

物件名

米沢市林泉寺 売戸建
物件番号K-11

所在地・交通

米沢市林泉寺2丁目 地内
愛宕小前バス停まで徒歩5分

物件情報

価格:1,490万円

建物面積:132.49㎡ / 40.07坪

間取り:4LDK

築年:1993年07月

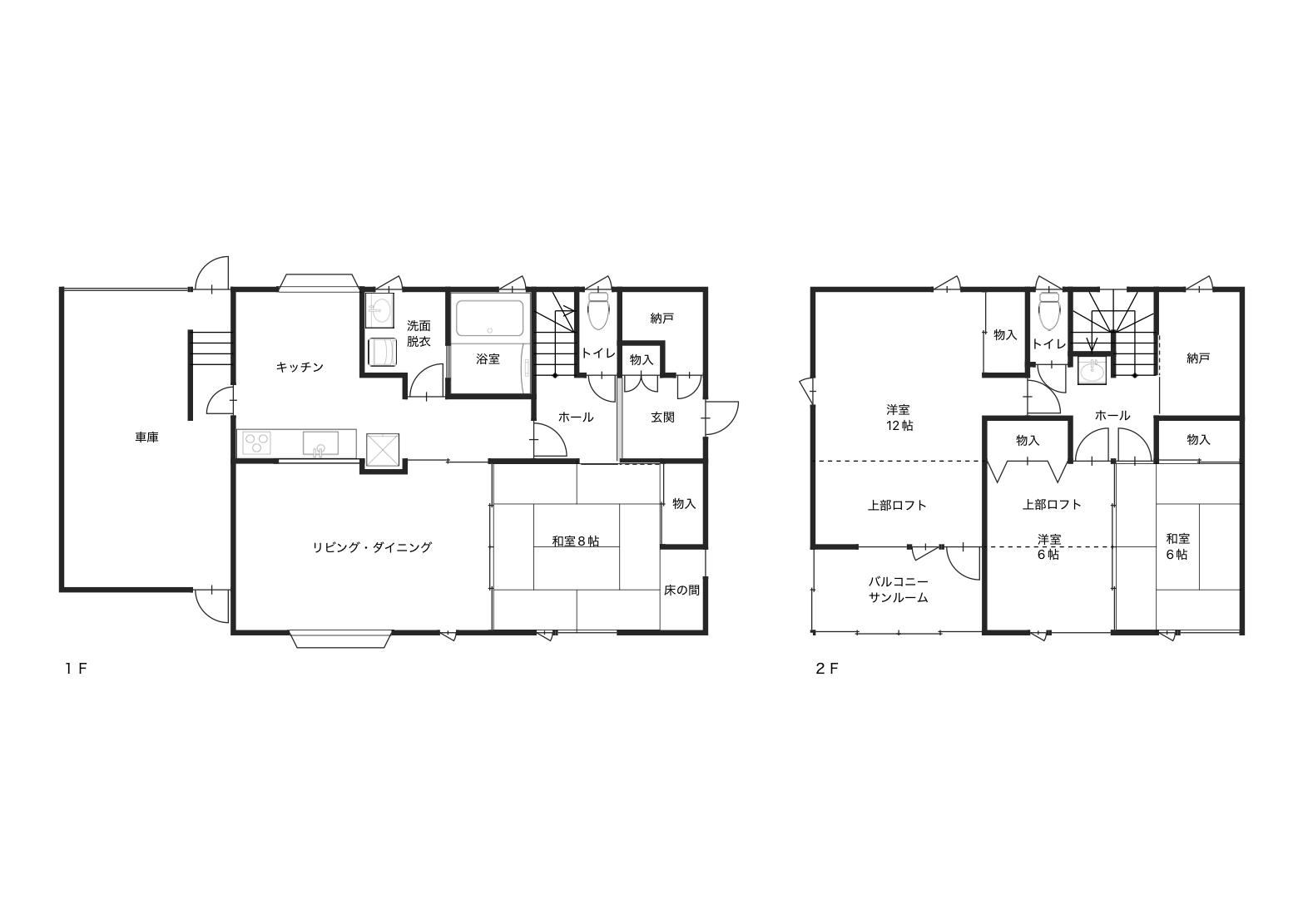
林泉寺北部の閑静な住宅街に建つ住宅です。角地に位置し、敷地全体に光と風が行き渡る、気持ちのよい立地です。 121坪のゆとりある敷地の南側には広い庭があり、家庭菜園を楽しんだり、季節の移ろいを感じながら過ごす時間も思い描けます。 建物は4LDKにインナーガレージを備え、実用性にも配慮されたつくりです。南側に配置されたリビング・ダイニングと和室は、続き間として使える明るく開放的な空間で、家族が自然と集まる場所になりそうです。 2階12帖の洋室に隣接するバルコニー兼サンルームは、食事やお酒を楽しむなど、少し特別な時間を過ごす場としてもお使いいただけます。 各居室収納の他、納戸やロフト等、収納も充実。暮らしの変化にも柔軟に対応できる住まいです。 徒歩5分ほどの距離には、スーパーやドラッグストア、コンビニ、書店が揃い、日常の用事も身近で完結。小学校・中学校も近く、子育て世代の方にもおすすめの環境です。

間取り図

周辺マップ

所在地・交通

所在地米沢市林泉寺2丁目 地内

交通愛宕小前バス停まで徒歩5分

学区愛宕小 / 第二中(南成中)

物件詳細

土地面積401.91㎡ / 121.57坪

建物面積132.49㎡ / 40.07坪

間取り4LDK

建物構造木造2階建

築年1993年07月

駐車場2台

都市計画非線引区域

用途地域第一種低層住居専用地域

建ぺい率50%

容積率60%

接道北側 公道6m / 東側 公道6m

現況空家

土地権利所有権

取引形態媒介

引渡時期相談

駐車場2台

都市計画非線引区域

用途地域第一種低層住居専用地域

建ぺい率50%

容積率60%

接道北側 公道6m / 東側 公道6m

現況空家

土地権利所有権

取引形態媒介

引渡時期相談

設備公営水道、公共下水道、システムキッチン、ユニットバス、温水洗浄便座、シャワー付洗面化粧台(1F)、2F洗面化粧台、ロフト、サンルーム兼バルコニー、エアコン2台、FF暖房、テレビドアホン、照明器具、インナーガレージ等

備考・契約不適合責任免責 ・現況有姿引渡し ・家具の残地等は要相談 ・2020年8月電気温水器交換 ・車庫部分22.54㎡ ・外水栓2ヶ所不具合有

注意事項・図面及び写真が現況と相違する場合は、現況優先とさせていただきます。 ・当サイトでは掲載情報に厳重なチェックを心がけていますが、万が一記載ミスが生じた場合は予めご容赦下さい。

注意事項・図面及び写真が現況と相違する場合は、現況優先とさせていただきます。 ・当サイトでは掲載情報に厳重なチェックを心がけていますが、万が一記載ミスが生じた場合は予めご容赦下さい。

情報更新日2026年02月10日

次回更新日2026年02月24日

内見お申し込み・
お問い合わせはこちら
Application/Inquiry

Contact Form