売買物件
Buying and selling

物件名

米沢市林泉寺 売戸建(リフォーム済)
物件番号K-5

所在地・交通

米沢市林泉寺3丁目11-7
南米沢駅まで1.3km

物件情報

価格:1,979万円

建物面積:97.70㎡ / 29.55坪

間取り:4LDK

築年:2010年05月

閑静な住宅街、林泉寺ニュータウン(分譲地)内に建つ住宅です。 整った街並みの中で、落ち着いた暮らしが叶う住環境です。 建物は3~4人家族にちょうどよい4LDK。家事がしやすい水回り動線や、来客時にも使いやすい和室を備え、日々の暮らしを考えた間取りとなっています。風除室やサンルームもあり、季節を問わず便利にお使いいただけます。 敷地内には2台分のカーポートと消雪設備を完備。米沢の厳しい冬でも、車の出入りや雪かきの負担を軽減してくれそうです。 周辺にはスーパーやコンビニ、飲食店、郵便局などが車で2~3分の距離に揃い、生活利便性も良好。分譲地内には大きな公園もあり、子育て世帯にも安心の環境です。

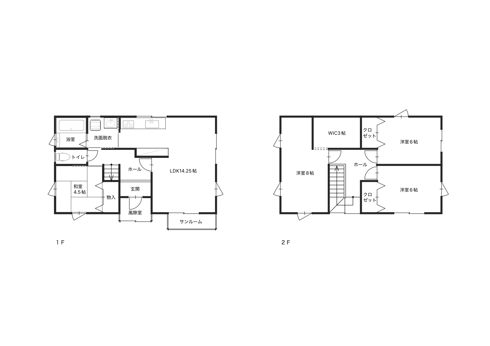
間取り図

周辺マップ

所在地・交通

所在地米沢市林泉寺3丁目11-7

交通南米沢駅まで1.3km

学区愛宕小 / 第二中(南成中)

物件詳細

土地面積282.25㎡ / 85.38坪

建物面積97.70㎡ / 29.55坪

間取り4LDK

建物構造木造2階建

築年2010年05月

駐車場3台(内カーポート2台)

都市計画非線引区域

用途地域第一種低層住居専用地域

建ぺい率50%

容積率60%

接道東側 公道7m

現況空家

土地権利所有権

取引形態媒介

引渡時期相談

駐車場3台(内カーポート2台)

都市計画非線引区域

用途地域第一種低層住居専用地域

建ぺい率50%

容積率60%

接道東側 公道7m

現況空家

土地権利所有権

取引形態媒介

引渡時期相談

設備公営水道、公共下水道、灯油ボイラー、システムキッチン、IHクッキングヒーター、ユニットバス、洗浄便座、フローリング、全室2面採光、テレビドアホン、シューズボックス、カーポート、井戸ポンプ、瑕疵保証付等

備考リフォーム済 トイレ交換、洗面化粧台交換、玄関鍵交換、一部クロス張替、井戸水点検、整地等

注意事項・図面及び写真が現況と相違する場合は、現況優先とさせていただきます。 ・当サイトでは掲載情報に厳重なチェックを心がけていますが、万が一記載ミスが生じた場合は予めご容赦下さい。

注意事項・図面及び写真が現況と相違する場合は、現況優先とさせていただきます。 ・当サイトでは掲載情報に厳重なチェックを心がけていますが、万が一記載ミスが生じた場合は予めご容赦下さい。

情報更新日2026年02月10日

次回更新日2026年02月24日

内見お申し込み・
お問い合わせはこちら
Application/Inquiry

Contact Form