価格:1,449万円
建物面積:150.89㎡ / 45.64坪
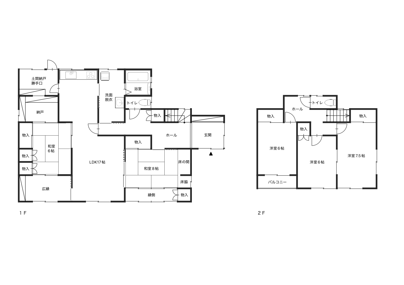
間取り:5LDK
築年:1985年07月
米沢市通町 売戸建(リフォーム済)
物件番号K-6
米沢市通町8丁目2-95-3
JR米沢駅まで1.3km
価格:1,449万円
建物面積:150.89㎡ / 45.64坪
間取り:5LDK
築年:1985年07月
通町北部、県道232号線そばの落ち着いた場所に建つ住宅です。 建物の内外装やお庭の佇まいに趣を感じられます。また、その趣は大切に残しながら、内外装を整え、水回り設備を新設するなどのリフォームが施されており、見た目の味わいと、これから長く安心して住める住まいとしての機能性、その両方がバランスよく備わっています。 1階南西にある広縁は、窓の先に庭を望む心地よい空間。備え付けの書棚があり、光の入る広縁でゆっくりと読書などを楽しめそうです。 各居室に収納があり、さらに大きめの納戸が2ヶ所。日常使いから季節物まで、収納にも困りません。 徒歩3分圏内にドラッグストアやコンビニがあり、スーパーへは車で2分ほど。JR米沢駅へのアクセスも良く、静かな環境と利便性をあわせ持った立地です。
間取り図
周辺マップ
所在地米沢市通町8丁目2-95-3
交通JR米沢駅まで1.3km
学区松川小 / 第一中
土地面積461.67㎡ / 139.65坪
建物面積150.89㎡ / 45.64坪
間取り5LDK
建物構造木造2階建
築年1985年07月
駐車場3台
都市計画非線引区域
用途地域第一種住居地域
建ぺい率60%
容積率200%
接道東側 公道6m / 西側 公道4m
現況空家
土地権利所有権
取引形態媒介
引渡時期相談
駐車場3台
都市計画非線引区域
用途地域第一種住居地域
建ぺい率60%
容積率200%
接道東側 公道6m / 西側 公道4m
現況空家
土地権利所有権
取引形態媒介
引渡時期相談
設備公営水道、浄化槽排水、個別LPガス、システムキッチン、ユニットバス、洗浄便座、追炊き給湯、トイレ2ヶ所、テレビドアホン、シューズボックス、LED照明、火災警報器(報知機)、バルコニー、勝手口物置、瑕疵保証付等
備考2025年6月 リフォーム完了 屋根・外壁塗装、駐車場拡張、キッチン・バス・トイレ・洗面化粧台交換、玄関扉交換、フローリング上張り、クロス張替、畳表替、建具交換等
注意事項・図面及び写真が現況と相違する場合は、現況優先とさせていただきます。 ・当サイトでは掲載情報に厳重なチェックを心がけていますが、万が一記載ミスが生じた場合は予めご容赦下さい。
注意事項・図面及び写真が現況と相違する場合は、現況優先とさせていただきます。 ・当サイトでは掲載情報に厳重なチェックを心がけていますが、万が一記載ミスが生じた場合は予めご容赦下さい。
情報更新日2026年02月10日
次回更新日2026年02月24日