売買物件
Buying and selling

物件名

米沢市駅前 売戸建
物件番号K-10

所在地・交通

米沢市駅前4丁目1-6
JR米沢駅まで徒歩10分

物件情報

価格:690万円

建物面積:161.11㎡ / 48.73坪

間取り:3LDK

築年:1973年06月

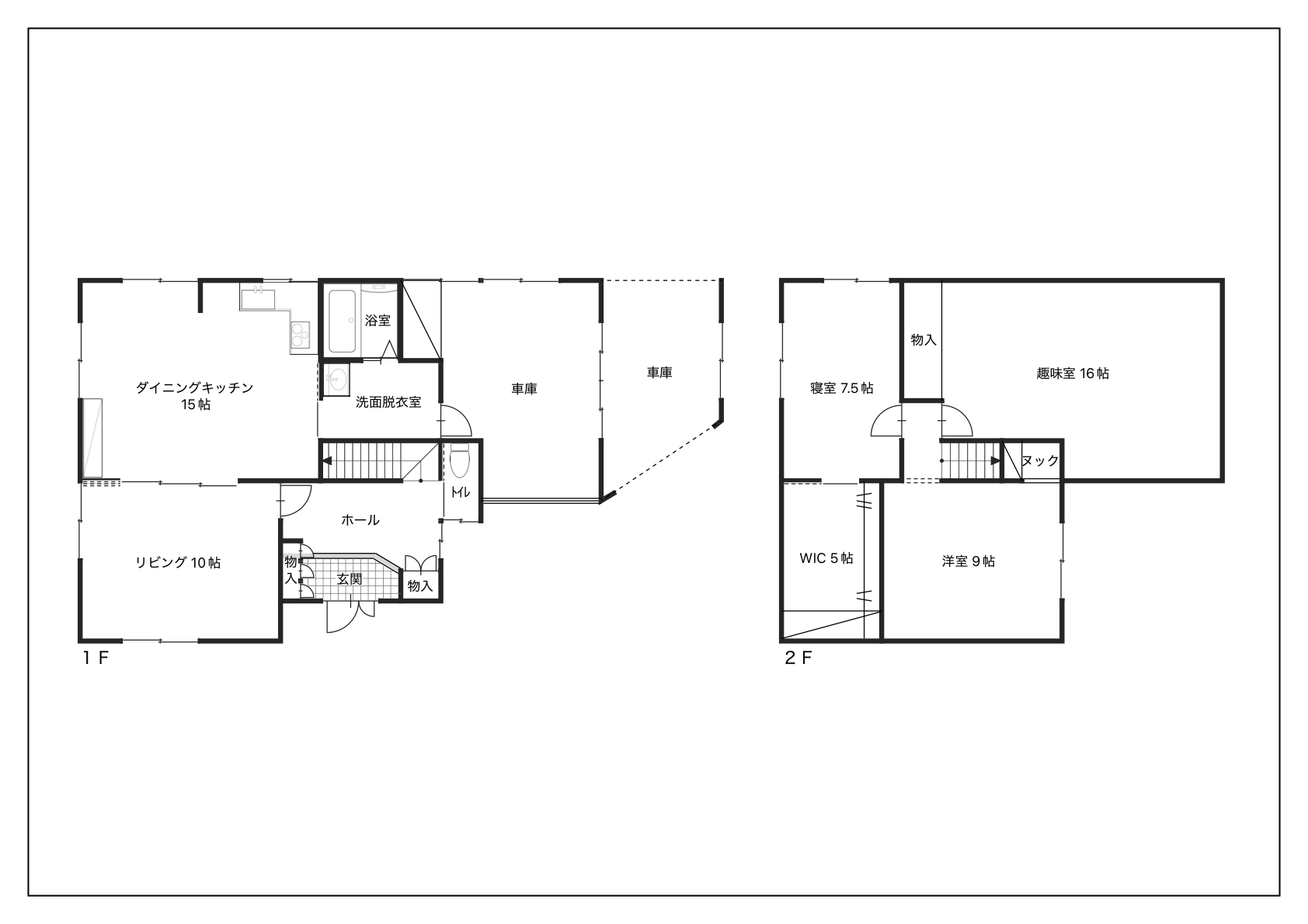
57坪のコンパクトな敷地に、インナーガレージ付きの建物と庭がバランスよく配置された住まいです。白い外壁が、すっきりとした印象を与えてくれます。 25帖の広々としたLDKは建具で仕切ることができ、来客時にキッチンを見せたくない場合などにも便利。暮らし方に合わせて空間の表情を変えられるつくりです。 2階には洋室2部屋のほか、窓のない16帖の部屋があり、シアタールームや演奏室など、趣味室としてお使いいただけます。 石畳が敷かれた庭のテラスは、椅子とテーブルを置いて、ゆっくりとお茶を楽しみたくなる心地よい空間。屋外の時間も、暮らしの一部として楽しめそうです。 米沢駅や郵便局までは徒歩8分、スーパーへは徒歩3分。日々の生活にうれしい利便性も備えた立地です。 ※ガレージに入る車のサイズは制限があります。ご見学の際、お確かめください。

間取り図

周辺マップ

所在地・交通

所在地米沢市駅前4丁目1-6

交通JR米沢駅まで徒歩10分

学区東部小 / 第一中

物件詳細

土地面積189.20㎡ / 57.23坪

建物面積161.11㎡ / 48.73坪

間取り3LDK

建物構造木造2階建

築年1973年06月

駐車場2台(車体サイズ確認要)

都市計画非線引区域

用途地域第一種住居地域

建ぺい率60%

容積率200%

接道南側 公道6.5m

現況空家

土地権利所有権

取引形態媒介

引渡時期相談

駐車場2台(車体サイズ確認要)

都市計画非線引区域

用途地域第一種住居地域

建ぺい率60%

容積率200%

接道南側 公道6.5m

現況空家

土地権利所有権

取引形態媒介

引渡時期相談

設備公営水道、公共下水道、LPガス、システムキッチン、ユニットバス、洗面化粧台、ウォークインクロゼット、シューズボックス、インナーガレージ、テラス等

備考・契約不適合責任免責 ・現況有姿引渡し ・敷地一部が都市計画道路予定地となっています。

注意事項・図面及び写真が現況と相違する場合は、現況優先とさせていただきます。 ・当サイトでは掲載情報に厳重なチェックを心がけていますが、万が一記載ミスが生じた場合は予めご容赦下さい。

注意事項・図面及び写真が現況と相違する場合は、現況優先とさせていただきます。 ・当サイトでは掲載情報に厳重なチェックを心がけていますが、万が一記載ミスが生じた場合は予めご容赦下さい。

情報更新日2026年02月10日

次回更新日2026年02月24日

内見お申し込み・
お問い合わせはこちら
Application/Inquiry

Contact Form